全国服务热线
136-6510-3389


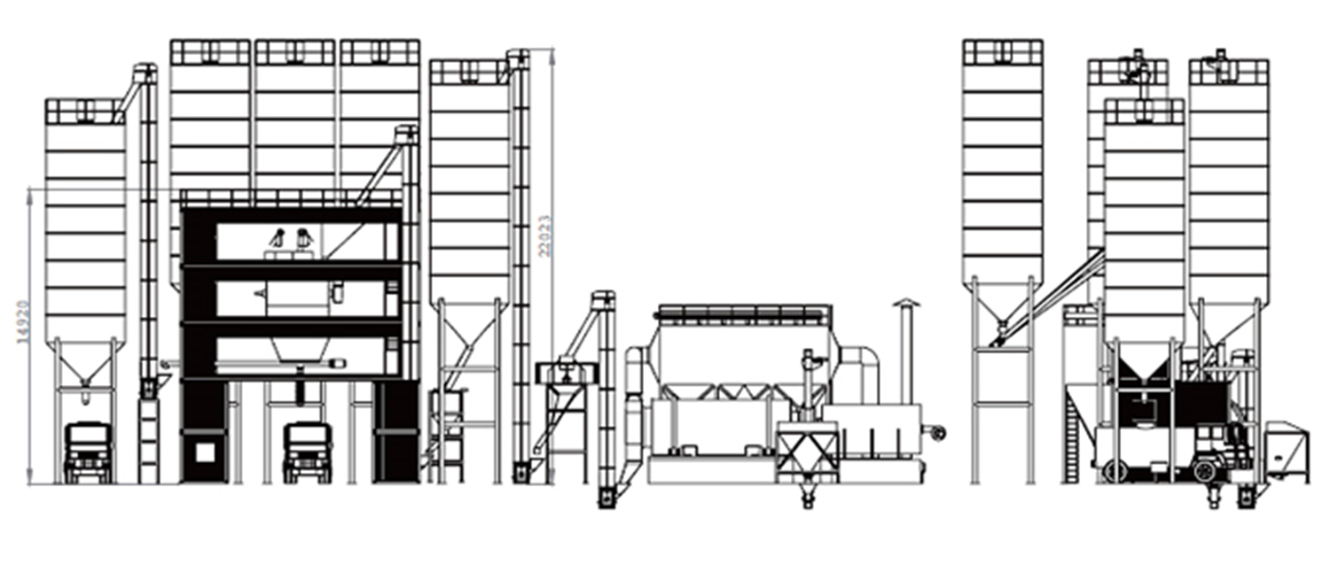
特种干粉砂浆成套设备:
(1)时产80~100吨,年产50万吨,站式结构
(2)烘干采用沸腾炉,燃料可用生物质燃料或煤
(3)原料可采用河砂+机制砂+石粉骨料,智能化控制
(4)砂头在设备内部循环破碎100%再利用
特种干粉砂浆成套设备概述:
主要分时产40吨、60吨、80吨三种型号,烘干部分一般可根据场地大小进行平面优化配置,可根据需要采用煤碳、生物质燃料、天然气等多种能源形式对河砂进行烘干,采用三回程烘干结构,能耗利用率高。主楼采用塔式结构,将粉料仓、外加剂仓等安装在主楼顶部,自上而下进行计量层、混合机层、成品仓、控制室、散装机、包装机的设备安装。可根据砂浆的配方要求通过电脑计量 配料后,经过混合主机搅拌,即时生产出需要的普通干粉砂浆。也可以根据配方制造大部分的特种砂浆。全过程采用自动化操作模式。
特种干粉砂浆成套设备产品特点:
节能高效的烘干系统:
1.工艺布置合理,结构紧凑,可灵活配置各种燃烧炉。
2.采用三回程烘干筒结构,热效率高,占地面积小。
3.各类电机、风机采用国产 ,工作可靠。
4.大功率电机采用变频控制,能耗低。
5.系统采用连锁控制技术,对温度、速度、电流等实时进行监控。