全国服务热线
136-6510-3389
徐先生:136-6510-3389
华先生:139-6170-7220
座 机:0510-85617128
邮 箱:wuxi_road@126.com
地 址:无锡市滨湖区华庄红周路121号


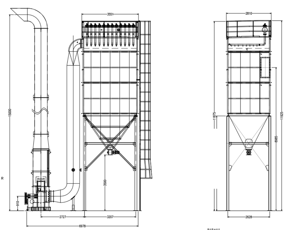
由于铣刨料设备破碎过程中,产生部分扬尘,公司还精心配置了布袋集尘器。除尘器采用脉冲阀控制,扬尘经布袋收集后,经过15米烟囱高空排放。除尘器扬尘排放完全达到 标准要求;
无锡路德筑路机械科技有限公司
品质有保证 ● 服务无止境 ● 售后更及时
是一家长期专注于沥青路面机械研发、制造及服务的专业化公司。为国内外公路、机场、大坝、桥梁、铁路、城市建设等单位提供设备和服务。
徐先生:136-6510-3389
华先生:139-6170-7220
公司座机:0510-85617128
邮箱:wuxi_road@126.com
地址:无锡市滨湖区华庄红周路121号