全国服务热线
136-6510-3389



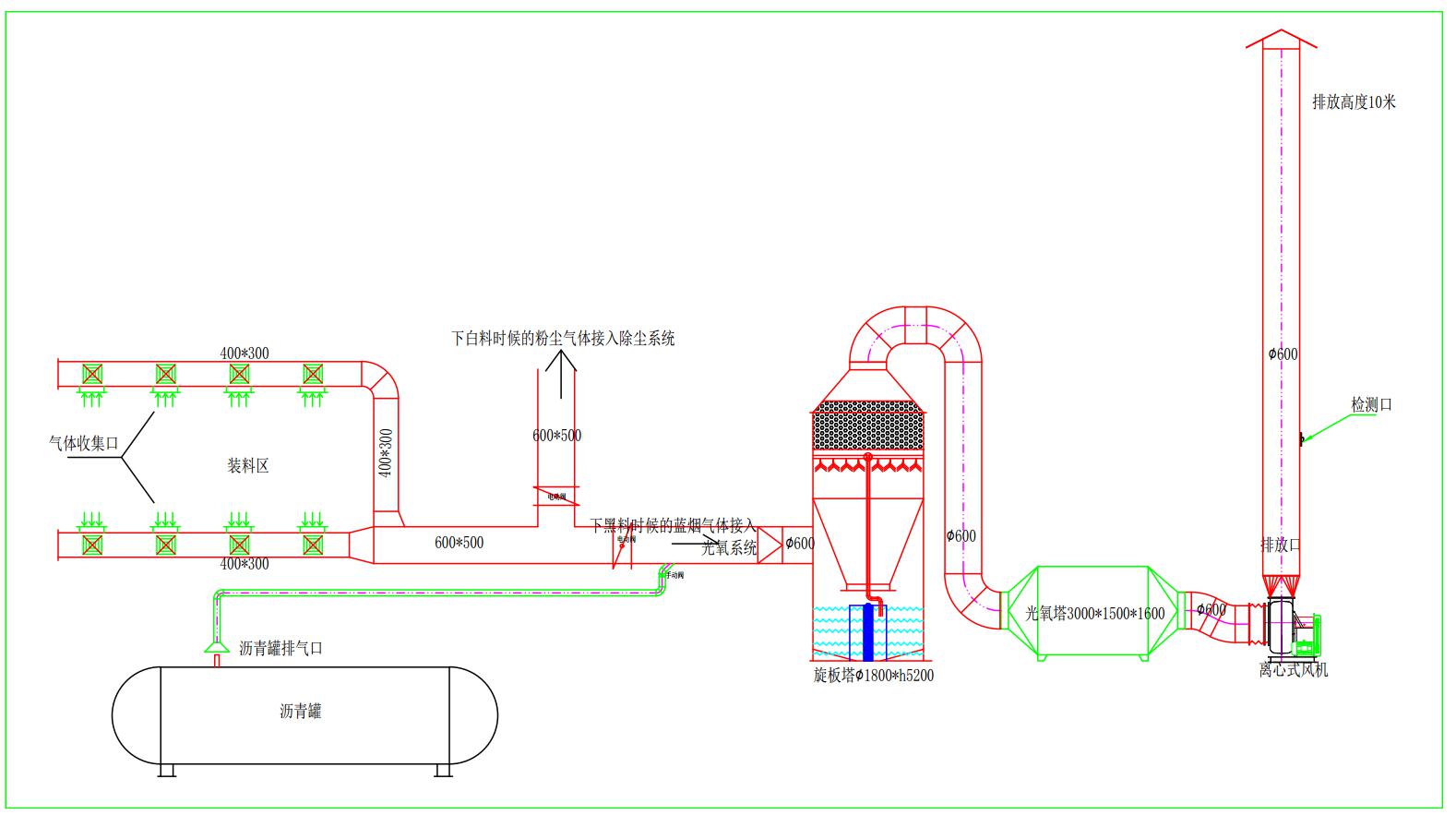
废气性质:呈有机气体并伴有苯,硫,粉尘。上诉气体易发生部分固体带粉尘性质。所以选用旋板塔,将有机物颗粒通过旋板塔沉淀,经旋板塔喷淋颗粒沉淀溶于水中,经旋板塔处理后的气体进入光催化装置,光氧催化是利用特制的高能高效 UV 紫外线光束照射废气,裂解工业废气如:氨、三甲胺、甲硫氢、甲硫醇、甲硫醚、乙酸丁酯、乙酸乙酯、二甲二硫、苯乙烯、苯、甲苯、二甲苯、酮类、酯类的分子链结构,使有机或无机高分子恶臭化合物分子链,在高能紫外线光束照射下,降解转变成低分子化合物,如 CO2、H2O。利用高能高臭氧 UV 紫外线光束分解空气中的氧分子产生游离氧,即活性氧,因游离氧所携正负电子不平衡所以需与氧分子结合,进而产生臭氧。
UV+O2→O-+O*(活性氧)O+O2→O3(臭氧),众所周知臭氧对有机物具有极强的氧化作用,对工业废气及其它刺激性异味有立竿见影的清除效果。 工业废气利用排风设备输入到本净化设备后, 净化设备运用高能 UV 紫外线光束及臭氧对工业废气进行协同分解氧化反应, 使工业废气物质其降解转化成低分子化合物、水和二氧化碳,再通过排风管道排出室外。利用高能 UV 光束裂解工业废气中细菌的分子键,破坏细菌的核酸(DNA),再通过臭氧进行氧化反应,彻底达到净化及杀灭细菌的目的.从净化空气效率考虑,我们选择了-C 波段紫外线和臭氧发结合电晕电流较高化装置采用脉冲电晕放吸附技术相结合的原理对有害气体进行消除,其中-C 波段紫外线主要用来去除硫化氢、氨、苯、甲苯、二甲苯、甲醛、乙酸乙酯、乙烷、丙酮、尿烷、树脂等气体的分解和裂变,使有机物变为无机化合物,从而达到洁净空气排放。
沥青罐在加热时,会有沥青烟气从罐顶部排气口逸出,设计烟气处理管道,直接通向地面除尘器,防止沥青烟气直接排放大气中造成大气污染。此套管路为专用烟气镀锌管道,美观轻盈防腐蚀。